Terratetto Pronta Consegna

Terratetto Pronta Consegna

300.000 €
150 m2
3 Camere
2 Bagni
Codice
V1073
Città
Prato (Coiano)
Categoria
Casa singola
Locali
5
Mq
150
Mq calpestabili
130
Mq Giardino
55
Piano
Terra
Classe energetica
G
320,88
Stato Immobile
Buono
Grado
Medio
Posizione
Centro
Panorama
Vista Giardino
Orientamento
Ovest Est
Lati Liberi
3
Giardino
Privato
Arredi
Non Arredato
Tipo Soggiorno
Soggiorno
Tipo Cucina
Abitabile
Riscaldamento
Autonomo
Tipo Riscaldam.
Caldaia
Tipo Impianto
Radiatori
Fonte Energetica
Metano
Acqua Calda
Autonoma
Raffrescamento
Split
Infissi
Legno
Serramenti
Buono
Persiana
Persiana Legno
Pavim. Giorno
Gres Porcellanato
Pavim. Notte
Gres Porcellanato
Pavim. Cucina
Gres Porcellanato
Pavim. Bagno
Gres Porcellanato
Prato nord Coiano: Occasione per chi ricerca un'abitazione indipendente a Prato nord!
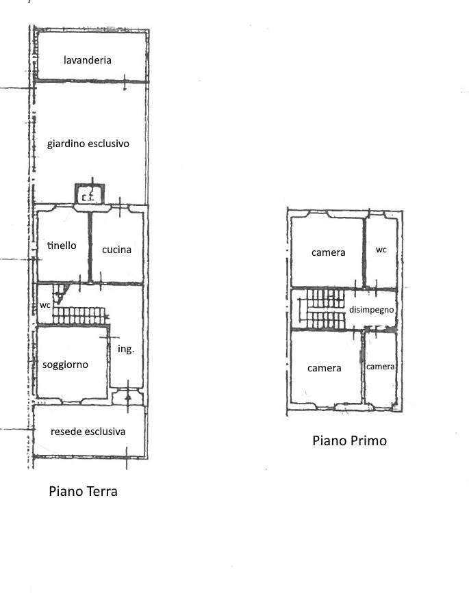
Terratetto indipendente 5 vani composto al piano terra da:
ingresso, soggiorno, tinello, cucina abitabile con accesso al grazioso giardino tergale di circa 50 mq - sul quale insiste un' ampia stanza lavanderia da adibire in base alle esigenze - e bagno di servizio;

al Piano primo troviamo un ampio disimpegno che da accesso alle 2 camere matrimoniali, alla camera singola ed al bagno finestrato.
Buone condizioni generali a seguito del restauro eseguito nel 2010 che ha interessato anche tutti gli impianti.
Libero subito.

Per motivi di privacy l'indirizzo indicato non è quello reale.
Chiamaci adesso per ulteriori informazioni o per prenotare una visita sul posto
Per motivi di privacy l'indirizzo indicato non è quello reale.
Chiamaci adesso per ulteriori informazioni o per prenotare una visita sul posto

Mappa

via C.Guerra 22, Prato (PO)

Agenti venditori

Ballerini Alessio

Ballerini Alessio

Cel +39 348 1691138
alessio@agenziacasanet.com

Richiedi informazioni

Invia

Ti consigliamo anche

380.000 €
Villetta schiera In Vendita a Prato
3 Camere 2 Bagni 210 m2
155.000 €
Casa singola In Vendita a Prato
3 Camere 3 Bagni 150 m2
150.000 €
Casa singola In Vendita a Prato
1 Bagni 50 m2

Condividi

Cookie preference