Cerca con noi la tua nuova casa
+39 0574 694697
+39 348 1691138
Toggle navigation
Home
Immobili
Vendite
Prestigio
Capannoni
Chi siamo
Servizi
Se stai comprando...
Se stai vendendo...
Consulenza creditizia
Contatti
Dicono di noi
Compatta pannello di ricerca immobili
Espandi pannello di ricerca immobili
Tipologia
Vendite
Prestigio
Capannoni
Categoria
Qualsiasi
1 locale
2 locali
3 locali
4 o più locali
Appartamento
Attico
Azienda agricola
Baita
Cantina
Capannone
Casa singola
Castello
Duplex
Garage
Hotel
Laboratorio
Loft
Magazzino
Maisonette
Mansarda
Negozio
Porzione di casa
Porzione di villa
Posto auto
Posto barca
Rustico / Casale
Stabile / Palazzo
Tenuta
Terreno
Terreno agricolo
Terreno edificabile
Ufficio
Villa
Villa bifamiliare
Villetta a schiera
Città
Tutte
Campi Bisenzio (FI)
Cantagallo (PO)
Carmignano (PO)
Montemurlo (PO)
Prato (PO)
Quarrata (PT)
Vaiano (PO)
Vernio (PO)
Zona
Tutte
Prezzo (da - a)
Mq (da - a)
Codice
Ordinamento
Inserimento
Codice
Categoria
Città
Zona
Prezzo
Metri quadri
Cerca
Terratetto Pronta Consegna
300.000 €
150 m
2
3 Camere
2 Bagni
Previous
Next
Foto
Codice
V1073
Città
Prato
(Coiano)
Categoria
Casa singola
Locali
5
Mq
150
Mq calpestabili
130
Mq Giardino
55
Mq Balcone
5
Piano
Terra
Classe energetica
G
Stato Immobile
Buono
Grado
Medio
Posizione
Centro
Panorama
Vista Giardino
Orientamento
Ovest Est
Lati Liberi
3
Giardino
Privato
Arredi
Non Arredato
Tipo Soggiorno
Soggiorno
Tipo Cucina
Abitabile
Riscaldamento
Autonomo
Tipo Riscaldam.
Caldaia
Tipo Impianto
Radiatori
Fonte Energetica
Metano
Acqua Calda
Autonoma
Raffrescamento
Split
Infissi
Legno
Serramenti
Buono
Persiana
Persiana Legno
Pavim. Giorno
Gres Porcellanato
Pavim. Notte
Gres Porcellanato
Pavim. Cucina
Gres Porcellanato
Pavim. Bagno
Gres Porcellanato
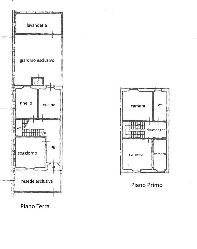
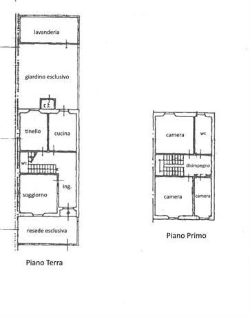
Prato nord Coiano: Terratetto 5 vani composto al piano terra da:
ingresso, soggiorno, tinello, cucina abitabile con accesso al giardino tergale di circa 50 mq con ampia stanza lavanderia, bagno di servizio (nel sottoscala);
Piano primo 2 camere matrimoniali, camera singola, bagno finestrato.
Buone condizioni generali.
Libero subito.
Per ulòteriori informazioni chiamare il 348/1691138 Alessio
Agenti venditori
Ballerini Alessio
Cel +39 348 1691138
alessio@agenziacasanet.com
Richiedi informazioni
Nominativo *
Telefono *
Email *
Dettagli richiesta *
Autorizzo il trattamento dei miei dati personali in base Regolamento UE n. 679/2016
Privacy Policy
Autorizzo al trattamento dei dati per finalità di marketing, attività promozionali, offerte commerciali ed indagini di mercato.
Invia
Ti consigliamo anche
Villetta schiera In Vendita a Prato
585.000 €
183 m
2
Casa singola In Vendita a Prato
188.000 €
2 Camere
1 Bagni
100 m
2
Casa singola In Vendita a Prato
150.000 €
1 Bagni
50 m
2
Condividi
Tweet
Mantieni impostazioni di default X
Uso dei cookies
Questo sito fa uso di cookies. I nostri cookies (propri) e quelli dei nostri Partners (cookies di terzi) servono per poterti offrire un'esperienza unica con noi. Per questo motivo, insieme ai nostri partners, raccogliamo e processiamo informazioni non sensibili (come l'identificatore del tuo dispositivo o le pagine che visiti).
In qualsiasi momento potrai eliminare, modificare o verificare le informazioni che condividi in
Cookie preference
o nella nostra
Cookie Policy
e
Privacy Policy
.
Necessari
Funzionali
Profilazione
Analitici
Accetta tutti
Rifiuta tutti
Accetta selezionati
Cookie preference