Cerca con noi la tua nuova casa
+39 0574 694697
+39 348 1691138
Toggle navigation
Home
Immobili
Vendite
Prestigio
Capannoni
Chi siamo
Servizi
Se stai comprando...
Se stai vendendo...
Consulenza creditizia
Contatti
Dicono di noi
Compatta pannello di ricerca immobili
Espandi pannello di ricerca immobili
Tipologia
Vendite
Prestigio
Capannoni
Categoria
Qualsiasi
1 locale
2 locali
3 locali
4 o più locali
Appartamento
Attico
Azienda agricola
Baita
Cantina
Capannone
Casa singola
Castello
Duplex
Garage
Hotel
Laboratorio
Loft
Magazzino
Maisonette
Mansarda
Negozio
Porzione di casa
Porzione di villa
Posto auto
Posto barca
Rustico / Casale
Stabile / Palazzo
Tenuta
Terreno
Terreno agricolo
Terreno edificabile
Ufficio
Villa
Villa bifamiliare
Villetta a schiera
Città
Tutte
Campi Bisenzio (FI)
Cantagallo (PO)
Carmignano (PO)
Montemurlo (PO)
Prato (PO)
Quarrata (PT)
Vaiano (PO)
Vernio (PO)
Zona
Tutte
Prezzo (da - a)
Mq (da - a)
Codice
Ordinamento
Inserimento
Codice
Categoria
Città
Zona
Prezzo
Metri quadri
Cerca
Bilocale da restaurare
110.000 €
55 m
2
1 Camere
1 Bagni
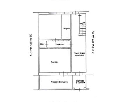
Planimetrie
Codice
V001072
Città
Prato
(Iolo)
Categoria
2 locali
Locali
2
Mq
55
Mq Giardino
10
Piano
Terra
Classe energetica
F
320,38
Stato Immobile
Abitabile
Grado
Medio
Posizione
Periferia
Lati Liberi
2
Giardino
Privato
Arredi
Non Arredato
Tipo Soggiorno
Soggiorno
Tipo Cucina
Angolo Cottura
Riscaldamento
Autonomo
Tipo Riscaldam.
Caldaia
Tipo Impianto
Radiatori
Fonte Energetica
Metano
Prato località iolo: vediamo appartamento bifocale posto al piano terra di palazzina trifamiliare senza condominio.
Internamente l'abitazione è composta da ingresso su soggiorno con angolo cottura, disimpegno, camera matrimoniale, bagno oltre a piccolo resede frontale di proprietà.
Da rimodernare.
Libero in estate.
Ottimo anche per investimento.
Chiamaci per ulteriori informazioni. L'indirizzo indicato non è quello reale.
Mappa
vi sironi , Prato (PO)
Agenti venditori
Ballerini Alessio
Cel +39 348 1691138
alessio@agenziacasanet.com
Richiedi informazioni
Nominativo *
Telefono *
Email *
Dettagli richiesta *
Autorizzo il trattamento dei miei dati personali in base Regolamento UE n. 679/2016
Privacy Policy
Autorizzo al trattamento dei dati per finalità di marketing, attività promozionali, offerte commerciali ed indagini di mercato.
Invia
Ti consigliamo anche
Loft In Vendita a Prato
170.000 €
1 Camere
1 Bagni
60 m
2
Condividi
Tweet
Mantieni impostazioni di default X
Uso dei cookies
Questo sito fa uso di cookies. I nostri cookies (propri) e quelli dei nostri Partners (cookies di terzi) servono per poterti offrire un'esperienza unica con noi. Per questo motivo, insieme ai nostri partners, raccogliamo e processiamo informazioni non sensibili (come l'identificatore del tuo dispositivo o le pagine che visiti).
In qualsiasi momento potrai eliminare, modificare o verificare le informazioni che condividi in
Cookie preference
o nella nostra
Cookie Policy
e
Privacy Policy
.
Necessari
Funzionali
Profilazione
Analitici
Accetta tutti
Rifiuta tutti
Accetta selezionati
Cookie preference